#1 Skrevet November 25, 2013 Står ikke i håndboka og har nå søkt på engelsk, tysk og norsk. Nothing... HELP! 0 Del dette innlegget Lenke til innlegg Del på andre sider Flere delingsalternativer...
#2 Skrevet November 25, 2013 Under setet som på en del andre VAG? 0 Del dette innlegget Lenke til innlegg Del på andre sider Flere delingsalternativer...
#3 Skrevet November 25, 2013 Spør du eller svarer du? 0 Del dette innlegget Lenke til innlegg Del på andre sider Flere delingsalternativer...
#4 Skrevet November 25, 2013 Spør du eller svarer du? Han spør, men det er feil svar. Er det noe rele i det hele tatt? Trodde det var trinnvis regulering rett over bryteren. 0 Del dette innlegget Lenke til innlegg Del på andre sider Flere delingsalternativer...
#5 Skrevet November 25, 2013 Det var ment som et forslag, men jeg vet ikke. Derfor spørsmålstegnet. 0 Del dette innlegget Lenke til innlegg Del på andre sider Flere delingsalternativer...
#6 Skrevet November 25, 2013 Det er vel trinnløs regulering i bryterrekka som er eneste på disse? 0 Del dette innlegget Lenke til innlegg Del på andre sider Flere delingsalternativer...
#7 Skrevet November 26, 2013 Svaret på det har jeg skrevet i en tråd på Bilforumet, hvertfall generelt for C4 Relé A5 bak dekselet under A-stolpen - på passasjersiden. 0 Del dette innlegget Lenke til innlegg Del på andre sider Flere delingsalternativer...
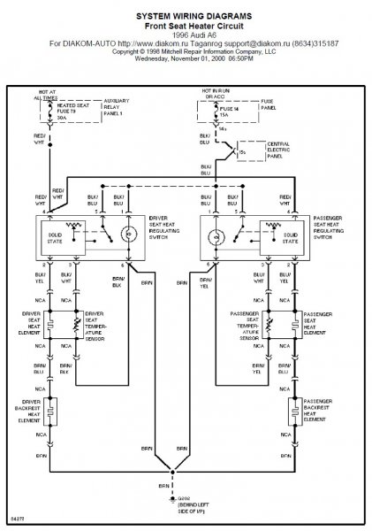
#8 Skrevet November 26, 2013 Har sett igjennom alle releene som står listet opp i etka, uten å finne noen som går til setevarme, samt at dette diagrammet understøtter at det er regulert direkte via bryterene. 0 Del dette innlegget Lenke til innlegg Del på andre sider Flere delingsalternativer...
#9 Skrevet November 26, 2013 Svaret på det har jeg skrevet i en tråd på Bilforumet, hvertfall generelt for C4 Relé A5 bak dekselet under A-stolpen - på passasjersiden. Får ikke det til å stemme med det jeg ser på linken din. Imidlertid A5 i auxilary relay box1 som sitter i vannkassen på førersida, det er sikring til varme i seter. Ellers finner jeg ikke rele for denne nei... 0 Del dette innlegget Lenke til innlegg Del på andre sider Flere delingsalternativer...
#10 Skrevet November 26, 2013 bryterne er jo supersvær. Jeg lurte på det fordi i både S6en (320.000km) og A6en (410000km) funker ikke setevarmer. Sikringene er okay og jeg hørte ikke releklikk når jeg skruer på, men det er lett å forklare når bryterne gjør hele jobben alene . 0 Del dette innlegget Lenke til innlegg Del på andre sider Flere delingsalternativer...
#11 Skrevet November 26, 2013 Så da er det varmemattene tipper jeg 0 Del dette innlegget Lenke til innlegg Del på andre sider Flere delingsalternativer...
#12 Skrevet November 26, 2013 Det er nok varmeelementene i setene som er ødelagt. Det som er typisk er at noen skal hente noe i hanskerommet, og setter kneet i setet når de lener seg over. Da blir det for mye strekk på ett punkt, og trådene ryker av. 0 Del dette innlegget Lenke til innlegg Del på andre sider Flere delingsalternativer...
#13 Skrevet November 26, 2013 Vurderer faktisk å fikse det. Noen her som snakker strøm? Tenkte å kjøpe universal carbonvarmeelementene som tåler mer og drive de bare med original ledningsnett, bryter etc. Do it or leave it? 0 Del dette innlegget Lenke til innlegg Del på andre sider Flere delingsalternativer...
#14 Skrevet November 26, 2013 På min virket heller ingen av varmeelementene foran. Begge! kontaktene under setene var halvveis trukket ut og ikke helt i lenger. Det var ganske så korte ledninger på disse, og antakelig har de blitt trukket ut etter å ha skjøvet setene frem og tilbake. Verdt å sjekke. Anders 0 Del dette innlegget Lenke til innlegg Del på andre sider Flere delingsalternativer...
#15 Skrevet November 26, 2013 Will do 0 Del dette innlegget Lenke til innlegg Del på andre sider Flere delingsalternativer...
#16 Skrevet November 26, 2013 Det der må jeg og sjekke. Er ikke varme i førersetet mitt. Kun i passasjer! 0 Del dette innlegget Lenke til innlegg Del på andre sider Flere delingsalternativer...