#1 Skrevet Juli 19, 2004 Mine el.vinduer i cab`n har begynt å kødde. Så jeg lurte på om det var du gluppe hoder her som har vært borti samme problem før, eller kunne gi meg et par tips i feilsøkingen. Problem: På førerdøra sitter det 4 brytere for alle vinduene. Ingen fungere og heller ikke lys i de. På passasjer døra funger heller ikke bryteren for det vindu, heller her ingen lys i bryteren. Men ved hånbrekket har jeg en bryter for å kjøre alle 4 vinduene samtidig. Der fungere 3 av vinduene men ikke "førervinduet" Jeg får kjørt de 3 andre vinuene helt ned og helt opp. Har også funskjon når man åpner kalesjen at vinduene skal gå halv-veis ned. Det gjøre bare de 3 vinduene men ikke førervinduet. Hva kan feilen være? ledningsbrudd? reléfeil? Bryter som er gå´n? Noen gluppe idéer hvor jeg kan begynne? 0 Del dette innlegget Lenke til innlegg Del på andre sider Flere delingsalternativer...
#2 Skrevet Juli 19, 2004 Kjenner ikke cab'ene, så det kan være noe annet, men ved første ørekast høres dette ut som et ledningsbrudd (ingen releer ved vindu?). Sjekk sikringer o.l. først, demonter døra slik at du kommer til bryterene (kjenner ikke cab'en hvordan dette er langt opp). Så er det bare å isolere komponent til komponent. Jeg tipper at bruddet ligger et sted rundt døra (kretskort, komponenter, koblinger) - da det av og til kommer vann inn her og korroderer.. 0 Del dette innlegget Lenke til innlegg Del på andre sider Flere delingsalternativer...
#3 Skrevet Juli 19, 2004 Jeg vil også regne med at det er ledningsbrudd i førerdøra, da det faktisk er to forskjellige kretser til bryterne i døra og sentralbryteren ved brekket. Tips, releet til sentralbryteren sitter bak bakseteryggen (derfor den andre tråden?) på venstre side av bilen. Husker jeg riktig så er det et 70A rele til sentralbryteren. Hvor det "vanlige" releet til vinduene sitter husker jeg ikke akkurat nå, men jeg erindrer at det satt på innsiden av sparkedekselet nederst mot kanalen på høyre A-stolpe. 0 Del dette innlegget Lenke til innlegg Del på andre sider Flere delingsalternativer...
#4 Skrevet Juli 19, 2004 I min cab er det er rele på førersiden rett over føttene. Det klikker i dette når eg bruker førervinduet. Tror det skal være en eller anne form for automat sikring der?? 0 Del dette innlegget Lenke til innlegg Del på andre sider Flere delingsalternativer...
#5 Skrevet Juli 19, 2004 Finnes det noe nr eller delenr på disse forskjellige reléne?? (iallefall det foran) så jeg har noe å lete etter. 0 Del dette innlegget Lenke til innlegg Del på andre sider Flere delingsalternativer...
#6 Skrevet Juli 20, 2004 Høres mer ut som lednigsbrudd enn det releet. Jeg har nemlig hatt begge deler på min s4. Det er et svakt punkt på mange audier. De bryter i belgen mellom bilen og døra. En skikkelig drittjobb og fikse, men med loddebolt, en del ledning og ikke minst MASSE tålmodighet(noe som jeg ikke har) så går det greitt... Tidemann 0 Del dette innlegget Lenke til innlegg Del på andre sider Flere delingsalternativer...
#7 Skrevet Juli 20, 2004 Begynner å nærme meg feilen nå. Lurer på om noen kan sjekke opp i hva rele nr 367, dele nr: 8G0 959 257 A driver å styrer med el.vinduene. Tror muligens feilen ligger rundt det. Kan ikke se noe ledningsbrud i mellom døra. 0 Del dette innlegget Lenke til innlegg Del på andre sider Flere delingsalternativer...
#8 Skrevet Juli 20, 2004 8G0 959 257 A = Styreenhet (relè) for elektrisk vindushever- og skyvetakbetjening, merket 367 og har merknad "8 sec" 0 Del dette innlegget Lenke til innlegg Del på andre sider Flere delingsalternativer...
#9 Skrevet Juli 21, 2004 Styrer på med mine el.vinduer. Fant ut at møller tar 2063,- for de reléet. Så det blir ikke aktuelt å kjøpe inn, for så å finne ut at var ikke det som var feil. Men har funnet et felles punkt for alle 4 bryterne i ledningsnett som mangler +12v. Og den ledningen mener jeg går inn til det relét. Men når jeg ser videre så ser jeg de ledningene som går til 4 bryterknappene at de er "ganske tykke" og det ser ut som det er "direkte" start fra bryteren (ved føredøra) til vinduene. At de brytrene her er så store at de kan bryte "hovedstrømmen" og går ikke via noe relé. Og at de relene som er brukes til "felleskjøring" av alle vinduene. Kanskje ikke helt riktig men nok noe i den duren. For når jeg tilfører +12v på det punktet som mangler (med en batterilader) så blir det lys i brytrene og alle vinduene funger som normalt. Kan faktisk kjøre vinduene uten med tenninga påslått. Så jeg lurer bare på om jeg finne et +12v sted som går på tenninga og sikre ledningen med 60A og koble meg inn på det punktet. Så er det problemt løst. Og siden det går over "teninga" så vil ikke bryteren stå å lyse/kunne betjens uten nøkkelen står i, som det er org. 0 Del dette innlegget Lenke til innlegg Del på andre sider Flere delingsalternativer...
#10 Skrevet Juli 23, 2004 Hvor kommer denne fellesledningen fra? Cabben skrur av et relé når en åpner førerdøra, hvis du ikke åpner denne, skal en kunne kjøre vinduene opp og ned uten engang å ha i nøkkelen (bare en viss tid da, og kun etter at tenningen har vært på..) Aner ikke hvor dette releet sitter, eller hva det heter, men det kan være noe med det.. Har du åpnet releet? Det er ofte lett å se hva som har gått føyken, mitt after-run relé hadde i hvertfall en gåen transistor.. S4'n kan kjøre vinduet opp og ned helt til en lukker igjen døra igjen, så vet du det også.. 0 Del dette innlegget Lenke til innlegg Del på andre sider Flere delingsalternativer...
#11 Skrevet Juli 23, 2004 Da jeg hadde problemer med mitt rele, var det en med litt mer peiling enn meg som enkelt og greitt loddet fskapet. det har funket helt fint etter det... Sparte meg for noen kroner det ja... 0 Del dette innlegget Lenke til innlegg Del på andre sider Flere delingsalternativer...
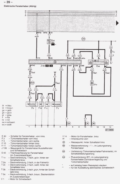
#12 Skrevet Juli 23, 2004 skjema! 0 Del dette innlegget Lenke til innlegg Del på andre sider Flere delingsalternativer...
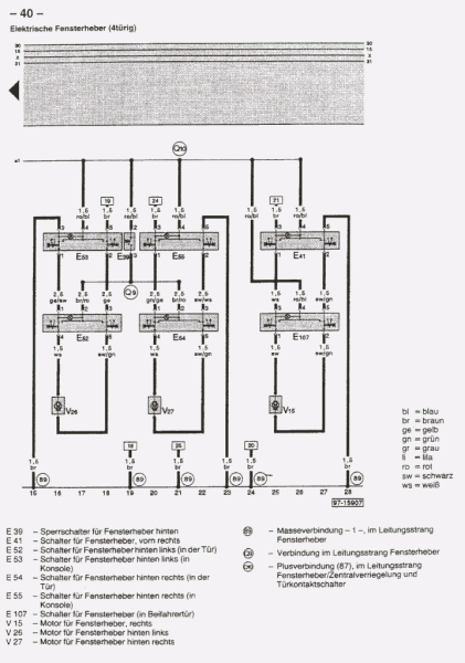
#13 Skrevet Juli 23, 2004 skjema 2 0 Del dette innlegget Lenke til innlegg Del på andre sider Flere delingsalternativer...